Live-in Cube by Tinee homes is a modular building system that aims to make bring ultimate flexibility to customers looking at building in the tiny home space. Whether you’re looking for a tiny home on a small suburban site or accommodation options in a rural area our live-in cube modules provide endless configurations and easy onsite setup.
With a number of exterior wall options and module types available and the ability to alter and add down the track we can accommodate your living needs now and in the future.
More than just a simple transportable or donga, our modules are built with a quality first mentality and with 40 years of high end residential building experience behind them. They are also fully engineered, built to current Australian building standards and ready for certification and building approval.
All modules are prefabricated and completed in factory inc finishes and fit out. Customers have ultimate control over configurations and any module can have any of the pre-fabricated wall options to build their ideal setup.
Up to 2 modules can be fully connected in the factory (for example and bedroom and ensuite or kitchen and living) reducing time taken to setup on site as well as being perfect for small Granny flats and home office additions.
Once complete, modules are transported to site ready to be craned into place. We can fix modules onsite using either a concrete free footing system or minimal concrete pad footings, Reducing the need for extensive and costly siteworks and a traditional concrete pad.
With the footings in place each module can be craned into position, fixed to footings and have the accompanying roof cap fixed in place. Each module can then be fixed to one another in turn. The cube design allows for maximum configuration to suit each specific site from small, tight, inner city blocks to large rural sites.
The only onsite works required are the hookup to services (Electrical, Water, Gas, Sewer) and completing the connections between modules and roof caps.

24m2
Perfect short-stay accommodation options
Starting from $125,000

36m2
Sporting a larger kitchen for longer term small living
alternatives
Starting from $155,000

36m2
Tiny living that brings the outdoor in with additional
entertaining area
Starting from $150,000

An easy addition to increase productivity and
maximise existing home spaces
Starting from $40,000

12m2
Adding more options for pre-existing living areas
Starting from $65,000

12m2
Perfect for additional undercover entertaining
possibilities
Starting from $27,000

48m2
Perfect ancillary dwellings to add further living
space on your property for you or others
Starting from $170,000

72m2
Perfect as a standalone property with endless
options for a smaller living alternative
Starting from $245,000

60m2
A small living alternative with everything you
need to make a house a home
Starting from $200,000
Design
Prefabricated Modular “cubes” featuring configurable external walls
Dimension
External – 3.5 wide x 3.5 long x 3.5 High
Internal – 3.2 wide x 3.2 long x 2.6 high
Wall Configurations
Flat wall
2.4m wide sliding door
2.4m wide sliding/awning window
Double awning windows
Single awning highlight window
External entry door
Full width glass panel (corner to corner, floor to ceiling)
Frame
Fully welded steel frame with fully welded steel frame sub floor
Light gauge external and internal steel wall framing
Module Finishes and Site Setup
Prefinished in factory inc all cladding, linings, ceiling, Internal fitout, Wet areas and power – Turnkey complete
Roof System
Every module has it’s own roof “cap”
Prefabricated roof system complete with guttering, eaves, flashings and space for services (Electrical and Water)
Roof cap completed in factory and fixed to module once on site
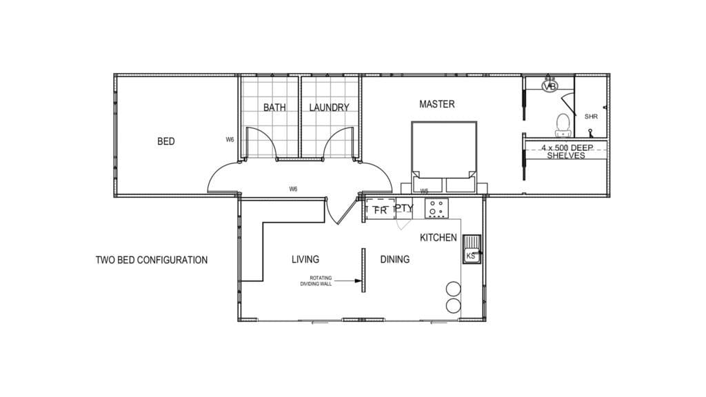
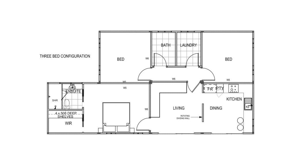
Single Bed/Living Module
Available with any configuration of exterior walls
Simple open living space that can be used as a bedroom, living area or family area
Ensuite Module
Features a complete bathroom (Shower, toilet, vanity) fully tiled and configured as desired
Fully separated walk in robe with complete cabinetry Custom cabinetry available
Utility Module
Feature half bathroom (Shower/Bath and vanity) + separate laundry
Kitchen Module
Pre – configured kitchen area inc all cabinets and benchtops
Custom cabinetry and benchtops available at request
Appliances available at request
Deck/Patio/Gazebo Modules
Can be built into structure or freestanding
Includes decking, roof structure, lighting and power
Perfect for standalone outdoor entertaining area
Quick turnaround – Freestanding gazebo complete and onsite in 2 weeks








Tiny homes allow for efficient use of resources and reduced infrastructure requirements. By utilising smaller living spaces, mining companies can optimise land usage and minimise their footprint, contributing to a more sustainable approach.
Discover the possibilities of living in a tiny home and reimagine the way you inhabit space. Embrace simplicity, sustainability, and freedom without compromising on comfort and style. Experience the joy of living large in a small footprint with a Tinee Homes built tiny home.
Enhance your short-term rental business with the addition of a tiny home. Experience increased occupancy rates, positive guest reviews, and greater profitability with a tiny home as part of your rental property.
Elevate your luxury escape offering to new heights with Tinee Homes. Delight discerning travellers with unique, luxurious, and sustainable accommodations that exceed their expectations. Immerse guests in a world of elegance, privacy, and natural beauty, and create a truly extraordinary escape with Tinee Homes.
From increased capacity and flexibility to sustainability and memorable experiences, these compact dwellings offer a fresh and innovative approach to accommodation. Set your business apart, enhance guest satisfaction, and unlock new revenue opportunities with Tinee Homes in the hospitality sector.
For individuals who work from home, a tiny home offers a transformative solution that enhances productivity, work-life balance, and overall well-being. With its compact size and thoughtful design, a tiny home creates a dedicated and efficient workspace while providing a comfortable living environment.